Ces dernières semaines ont marqué une belle série d’inaugurations pour nos équipes, témoignant de la vitalité et de la diversité de nos réalisations.
Le 28 août 2025, le marché de Capbreton qui retrouvait sa place au cœur de la vie locale, offrant un espace lumineux et convivial aux commerçants et habitants.
Le 26 septembre 2025, la Maroquinerie a ouvert ses portes, accueillant ses premiers artisans dans un bâtiment alliant élégance, fonctionnalité et exigence environnementale.
Le 29 septembre 2025, le gymnase du centre des Sables-d’olonne a été inauguré, offrant aux sportifs un équipement moderne et performant.
Ces trois réalisations illustrent notre engagement constant : concevoir et construire des lieux de vie durables, ouverts et inspirants.

GUIRAUD MANENC
11 rue Ernest Renan, 75015, Paris - France
09 50 87 31 21
contact@guiraud-manenc.com
SARL au capital de 4 500 €
RCS : Paris B 504 490 533
Siret : 504 490 533 00057
NIF : FR 11 504 490 533
APE : 7111Z - activités d’architecture
Antoine Guiraud - Architecte DPLG
diplômé de l’École Nationale Supérieure d’Architecture et de Paysage de Bordeaux
inscrit à l’Ordre des architectes d’Ile-de-France
Etienne Manenc - Architecte DESA HMONP
diplômé de l’École Spéciale d’Architecture
inscrit à l’Ordre des architectes d’Ile-de-France
SAS OVH
2 rue Kellermann, 59100, Roubaix - France
Antoine Guiraud et Etienne Manenc,
co-gérants de la société GUIRAUD MANENC.
L’ensemble des contenus (photos, textes, vidéo) consultables sur ce site sont et demeurent la propriété exclusive de GUIRAUD MANENC. L’internaute n’est donc pas habilité à reproduire, représenter ou commercialiser ces contenus en dehors des cas prévus par la loi ou expressément autorisés par leur propriétaire.
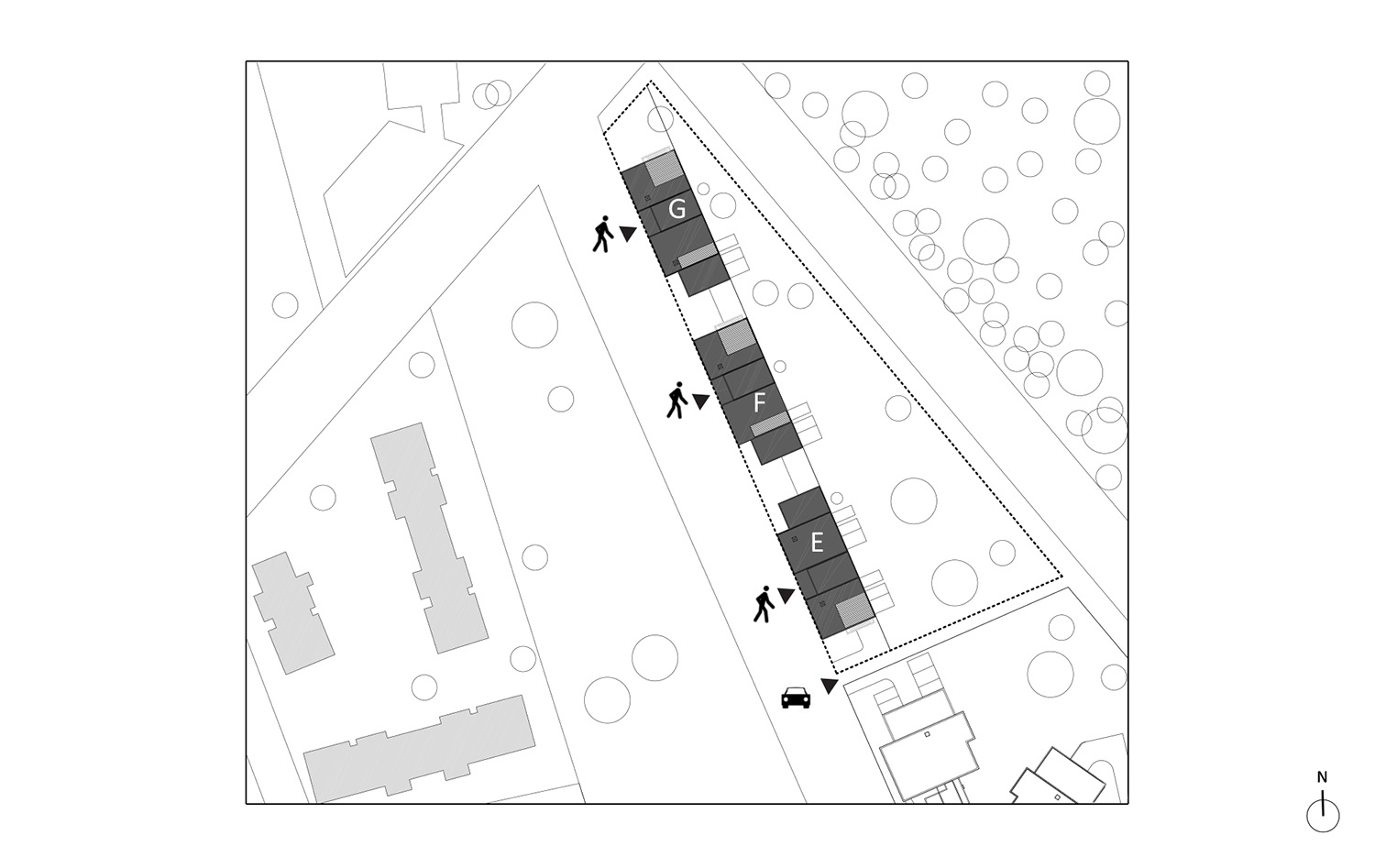
programme
construction de 28 logements en accession sociale / 36 places de stationnementcontexte
écoquartier Terre-Sud / Bel airsuperficie
1 920 m² SDPbudget
3 300 000 € HT (VRD compris)statut
réalisé (2021)mission(s)
basemaîtrise d'ouvrage
Domofrancemaîtrise d'œuvre
Guiraud - Manenc (mandataire) / Alain Charrier (associé)bureau(x) d'études
Verdi (pluridisciplinaire)paysagiste
A+R Paysagesstructure
béton brut / intégration des normes parasismiquesénergie
logements traversants / ventilation naturelle